REQUEST A TOUR If you would like to see this home without being there in person, select the "Virtual Tour" option and your advisor will contact you to discuss available opportunities.
In-PersonVirtual Tour

$ 100,000
Est. payment /mo
Price Dropped by $35K
12336 Sumac DR Desert Hot Springs, CA 92240
7,840 Sqft Lot
UPDATED:
Key Details
Property Type Vacant Land
Listing Status Active
Purchase Type For Sale
Subdivision Miracle Heights
MLS Listing ID IV25230164
HOA Y/N No
Lot Size 7,840 Sqft
Property Description
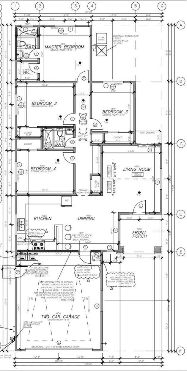
Ideal lot ready to build; 7,841 sq ft lot (approx.) with all approvals in place, offering a rare shovel-ready opportunity for your new home. Situated in a calm desert area, this parcel is fully approved through plan review (just pull the building permit) and includes an installed water meter and on property electric. The approved plans call for a net 1,486 sq ft single-story residence with 4 bedrooms and 2 bathrooms, thoughtfully designed for functional, modern living. Plans are available upon request for buyers or architects to review. Don't miss this opportunity to build without delay.
Location
State CA
County Riverside
Area 340 - Desert Hot Springs
Zoning Residential
Interior
Fireplace No
Exterior
Community Features Curbs, Near National Forest, Suburban
Utilities Available Electricity Available, Water Available
View Y/N Yes
View Desert
Building
Lot Description Rectangular Lot
Water Public
New Construction No
Others
Senior Community No
Tax ID 642043007
Acceptable Financing Conventional, Contract
Listing Terms Conventional, Contract
Special Listing Condition Standard

Listed by ADAM CASTILLO DYNASTY REAL ESTATE 909-485-4445






